Villa in Vendita a Latisana
Zona: Latisanotta
Classe energetica
Immagina la tua nuova casa a pochi minuti dal centro di Latisana, senza rinunciare a stile e modernità. Questo esclusivo progetto propone ville indipendenti con spazi ampi e luminosi, pensati per chi ama vivere in totale comfort e armonia.
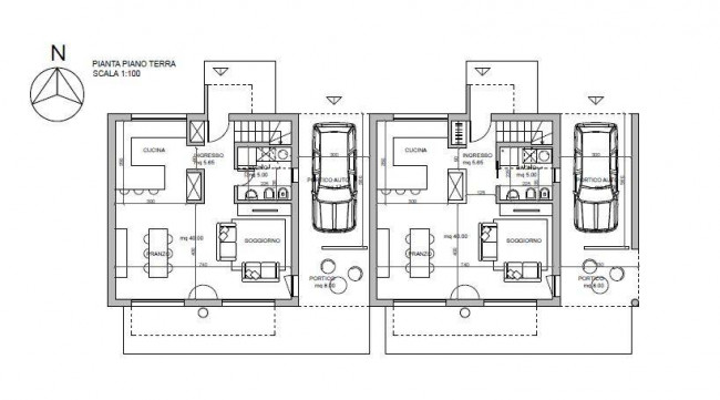
Al piano terra, un accogliente open space permette di organizzare la vita quotidiana con libertà: cucina, zona relax e area conviviale si fondono in un ambiente caldo e luminoso. Al piano superiore, camere spaziose e un bagno moderno garantiscono intimità e comodità per tutta la famiglia.
All’esterno, ogni Villa dispone di un giardino privato che circonda la casa su tre lati, perfetto per momenti all’aperto, mentre il porticato offre comodità per i parcheggi. La costruzione punta su qualità, sostenibilità e tecnologia, con materiali selezionati e soluzioni eco-efficienti per risparmio energetico e comfort quotidiano.
Le finiture possono essere scelte e personalizzate secondo il tuo stile, e in pochi mesi potresti trasferirti nella tua nuova abitazione pronta da vivere. Un’opportunità unica per chi cerca una casa moderna, senza rinunciare a tutte le comodità della vita cittadina.
Scopri come trasformare questo progetto nella tua nuova casa: contattaci oggi stesso!
Contattaci
immobiliare LIGNANO filiale di Latisana
Sede Operativa: Piazza Caduti della Julia, 13
33053 Latisana (UD)
Telefono 0431520232
latisana@immobiliarelignano.it
immobiliare LIGNANO
Piazza Caduti della Julia, 13
Latisana (UD)
Telefono 0431520232
latisana@immobiliarelignano.it
Immobili simili
Ultimo aggiornamento 23-04-2026
